Kitchen1.jpg
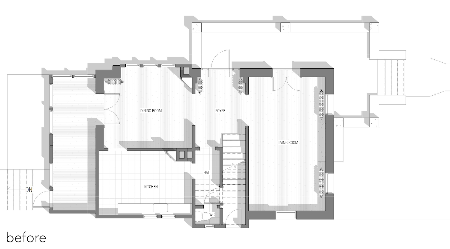
Diagrams1.gif
Dining1.jpg
Hall1.jpg
Kitchen2.jpg
PowderRoom1.jpg
Diagrams2.gif
Bed 3.jpg
Bed Mantel 1.jpg
Playroom2.jpg
Guest Bath 1.jpg
5.jpg
DSC_0180.jpg
Diagrams3.gif
prev / next